Property Details
Circumstances have changed and this property MUST SELL. It’s priced to sell, ACT NOW!!
It’s hard to find your seaside dream for well under a million dollars. This single level classic coastal home exudes character and presents a very affordable low maintenance residence.
Whether you’re looking to relocate for a sea change, upgrade, downsize or retire and travel, the home has plenty of attributes. It’s move in ready or change in time to suit your needs.
Being in such a desirable beachside location with little tourist traffic and access to all amenities this property has been home to one owner and will suit many lifestyles.
Castaways Beach, one of Noosa’s exclusive beachside estates, is a private enclave boasting superior homes, bound by the beach and Noosa National Park. The appealing estate with a high sense of community can’t increase in size which will ensure its financial placement in the future. Only a few minutes’ walk will have your toes on the glistening sands of Castaways Beach (please visit above video link).
Don’t miss out on a rare opportunity to secure your future at Castaways Beach.
• Perfect holiday home, use as your own lockup and leave or gain income through permanent letting or holiday letting
• Permanent rental appraisal at $680 per week, close to 4% return
• Investors note that a new International Airport is being constructed, to be complete by 2020, which is located only a short 20 minute drive away
• Freshly painted externally and internally, refurbished throughout with lush new wool carpets, lighting and stylish fans
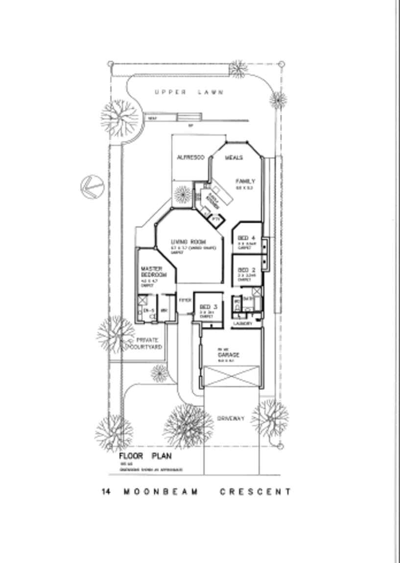
• Modern kitchen with stone bench tops and ample storage, spills to the dining area. A generous, light filled open plan lounge room has takes in views of the landscaped gardens in the backyard
• Generous size master bedroom with large walk-in-robe and ensuite, separate from the remaining 3 bedrooms
• Private outdoor alfresco area ready to relax and entertain, where you will enjoy the coastal breezes and sounds of nature.
• A considerable sized fully grassed backyard with various options for a plunge or lap pool (Quote has been obtained for a plunge pool - $25k)
• Moonbeam Crescent is a pet friendly street
• Public transport directly into Noosa or Maroochydore, within walking distance
• Sunshine Beach Village, where a new Surf Club is being constructed, with various appealing dining options, is only minutes away. This popular beach is patrolled all year round.
• Peregian Beach Village, also has great dining and shopping options, including the new Super IGA plus the famous Peregian Beach Hotel, only a 3 minute drive away
• Few minutes’ drive to Noosa’s main beach and Hastings Street's eclectic array of cafe's and restaurants




































